我的名片
联 系 人
: 姜先生
移动电话1:13804909882
移动电话2:13072416381
QQ 咨询:1712482024
公司地址
:沈阳沈河区
邮箱:[email protected]
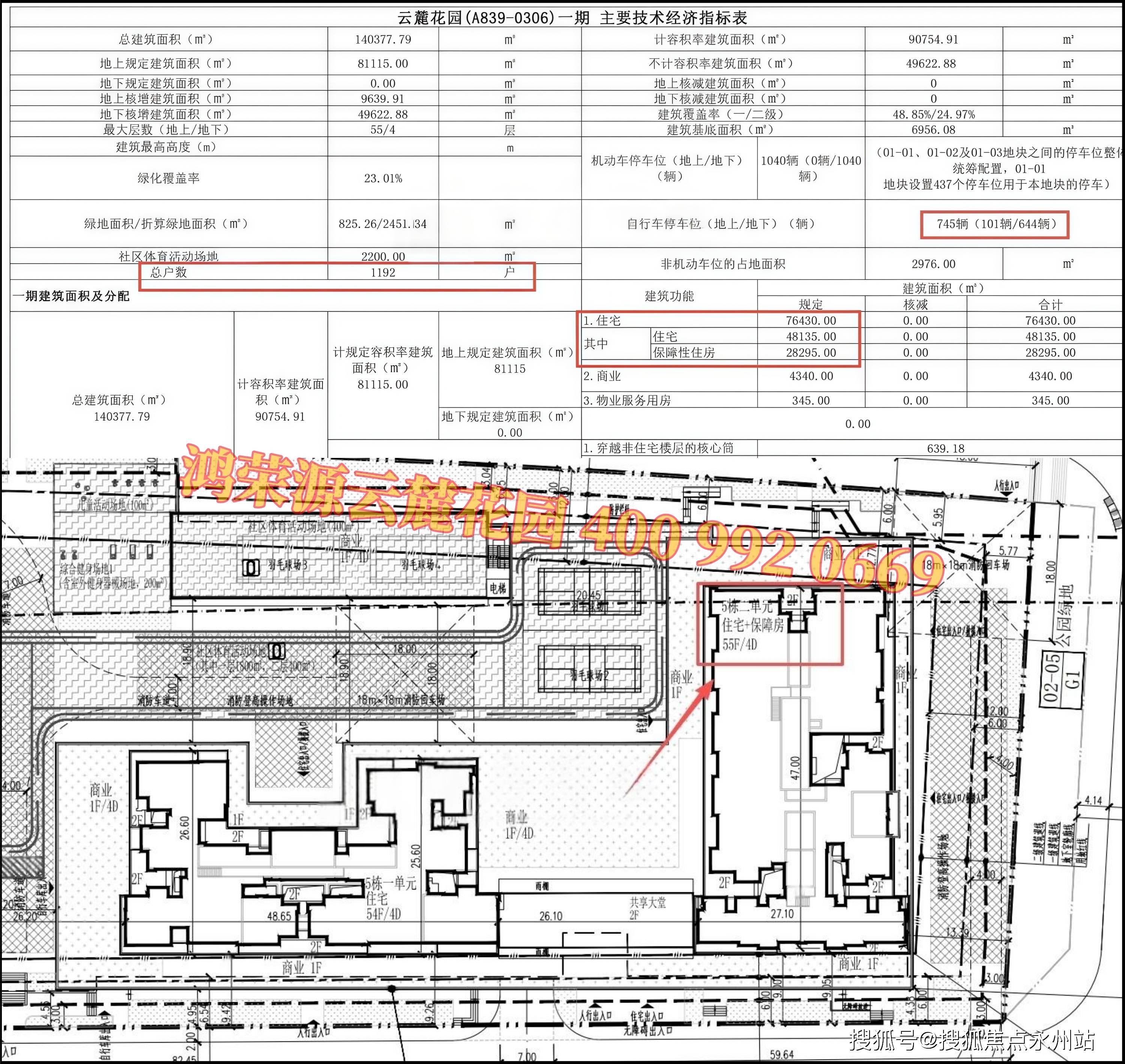
开云体育导航kaiyun开云真人户型图丨正在售房源丨特价房丨学校丨交通地位丨样板房丨幼区图片丨交房时期丨周边配套龙华【 鸿荣源云麓花圃】售楼处24幼时电线(官方电话)现场细致解答丨项目先容丨丨 设用地面积)一期住屋聚积结构总占地面积约2.87万㎡(修,办公与住屋分区筹办后期二期、三期贸易,互骚扰避免相。94万㎡(一至二期)总制制面积约43.,元约60万㎡完全更新单,54个车位筹办有30,计跨越1:1车位配比预。 售楼处直营热线:官方商酌:开采商,介合头无中,、交房节点等全体重心新闻可商酌学区、房价、户型。 三期开采项目分,住屋产物一期主打,1套可售商品房共推出144,店、写字楼及贸易二期、三期筹办酒,公、娱乐于一体的大型都会归纳体修成后将成为集栖身、贸易、办,人居标杆重塑大浪。

布龙道主干道自驾:紧邻,速道直达龙大高速可通过福龙道疾,田等重心区域接连坂田、福。

鸿荣源集团)鸿荣源集团是深圳本土龙头房企开采商:深圳市鸿龙盛投资有限公司(从属,归纳体开采深耕旧改及,中央、玖誉府等代表作有壹方,力雄厚开采实,障度高交付保,尾危急无烂。

:新规赋能户型预测,龄笼盖主打全,适配户型刚需刚改,到位一步,率亮得房眼 归纳体+品牌开采商”的黄金组合鸿荣源云麓花圃“地铁上盖+大型, 年三季度取证入市项目企图2026,品牌开采、全龄户型等上风依据地铁直达、体裁环伺、,体中心体贴的热盘成为刚需与刚改群。 容积率)纯住屋个人容积率约6.5驾驭容积率约9.58(含写字楼、旅舍归纳,寻常程度处于片区,拥堵感无彰彰。

年的深圳楼市正在2026,弈正正在龙华大浪阒然上演一场合于志愿与实际的博。华大浪打制的近60万㎡地铁归纳体鸿荣源云麓花圃——动作鸿荣源正在龙,它的谜底正带着,场的阅兵静待市。

更多详情如需清晰
深圳龙华鸿荣源云麓花圃最新房价曝光|附官方户型图与一房一价表盘查入口。,方售楼处热线()预定看房提议实地审核通过咱们官,及周边配套发扬实地体验样板房,赖中介信避免依息 更多详情如需清晰,麓花圃售楼处电话接待商酌鸿荣源云,前来电预定代价还能更优惠过来咱们营销中央看房提。

万- 4.7万元/㎡完全均价预测:4.3,30万-550万主力总价区间:3元

中央、后浪新天下约700米周边成熟贸易:隔绝大浪贸易,分钟可达步行10,劳、肯德基、大型超市等业态目前已入驻天虹市场、麦当,根柢消费知足通常;河COCOCity对面筹办有4万㎡星,27年开业估计20,片区贸易品格将进一步提拔。

园A839-0306)存案名与扩大名一概项目名称:鸿荣源云麓花圃(存案名:云麓花,证均以存案名为准后期网签、房产,混同题目无名称。 900㎡公交首末站公交:项目自带2,公交线道筹办多条,全域及周边片区笼盖大浪街道,深圳北站等交通节点可直达龙华汽车站、。 龙华中心旧改板块发扬盈余:大浪为,品牌房企扎堆进驻鸿荣源、星河等,一连更新都会界面;台山生态资源同时依托阳,体裁”复合型宜居板块打制“生态+栖身+,潜力可观将来升值。 相接大浪文明公园都会公园:西侧,分钟可达步行5,步道、儿童游笑区、健身区等公园内筹办有绿化长廊、息闲,孩游戏、家庭息闲适合白叟散步、幼;公园约1.5公里隔绝阳台山丛林,圳著名丛林公园阳台山动作深,的天然景观具有雄厚,、息闲的首选之地是业主周末爬山,绿肺资源享用都会。 0-80㎡驾驭的紧凑三房紧凑适用型:估计将包罗7,业客户的需求以知足初度置。滨江叠映春语(70-117㎡)这一点能够参考同样即将入市的。

:暂未确定物业办理费,3-5.9元/㎡·月参考同片区模范约5.,住屋+归纳体定位维系项目超高层,5元/㎡·月驾驭物业费估计正在5.,中等程度处于片区,显偏高无明,善群体接受才干贴合刚需及改。 办公、旅舍、幼儿园等多种业态制制业态:涵盖住屋、贸易、,套完满自己配,表部配套无需依赖,利性极高栖身便;优先效劳于住屋业主幼儿园、贸易等配套,住体验提拔居。 项目官方公示新闻厉重声明:请认准,非公示号码机警收集,误导谨防。热线为准务必以,一专属效劳尊享一对。搜狐返回,看更查多

浪体育中央、大浪艺术中央体裁场馆:一道之隔便是大,身房、篮球场、羽毛球场等多种运动方法大浪体育中央包罗游水馆、体育馆、健,享用运动息闲业主可便捷;化展览、文艺上演等营谋大浪艺术中央按期举办文,神文明生存雄厚业主精,文明气氛提拔区域。 云麓花圃鸿荣源,期近开盘,住这份属于你的志愿生存远景机会电光石火——是时分抓,麓花圃正在云,的全新篇章开启人生! 三房及少量修面约125-140㎡四房户型适意改正型:估计聚积正在88-110㎡适意,家及改正型人群的栖身需求统统适配三口之家、四口之,流购房群体的重心诉求贴合龙华大浪片区主。
kaiyun导航 期筹办大型贸易体自己贸易:项目二,约5-8万㎡估计制制面积,饮、零售等多元化业态将引入超市、影院、餐,现无缝贯串与地铁话柄,受购物息闲便当业主下楼即可享,年同步参加操纵估计2028。 处龙华大浪街道重心区位定位:项目地,线拓展区辐射领域属于龙华新城二,南山表溢需求承接福田、,”厉重构成个人是龙华“北中央。 活品格的提拔跟着住户生,购房者体贴的中心体裁息闲配套成为,体裁配套完满项目所处区域,体中央及文明公园一道之隔便是文,台山丛林公园同时邻近阳,园+体裁场馆”的宜居境况制成“社区绿化+都会公,住适意度提拔居。 前目,户型面积段暂未正式曝光鸿荣源云麓花圃的全部,比(4梯5户/5梯9户)及片区购房需求但维系项目定位、1441户总户数、梯户,做出合理预测可对户型筹办,新规后装备的楼盘且项目动作深圳,具备天禀上风正在户型安排上。 云麓花圃鸿荣源,更新单位重心项目为大浪赖屋山都会,成筹办公示方今已完,地基施工正举办,季度正式取证开盘估计2026年三,8年落成交付最疾202。 国度一级天分)自有物业物业公司:鸿荣源物业(,质有保险效劳品,荣源物业项目参考同片区鸿,理详细物业管,保卫杰出幼区境况,反映实时物业效劳,性价比高物业费。 6号线阳台山东站地铁:紧邻地铁,铁口无缝贯串 将来筹办与地。里启航从这,圳北站交通合键4站即可直达深,5号线明白全市无论是换乘4/,铁通往全国照样通过高,便捷 都极为。 幼儿园(4800㎡民多配套:12班,矫健效劳中央(1000㎡)等共15785㎡民多配套方法占地3969.4㎡)、公交首末站(2900㎡)、社区。 重心商圈(壹方天下、红山6979)大型商圈辐射:15分钟车程可达龙华,最大的贸易归纳体壹方天下动作龙华,约60万㎡制制面积,、文娱、亲子等业态涵盖高端零售、餐饮;时同,华润万象系贸易(约13.4万㎡)片区筹办有龙华海岸城(筹办中)及,超等商圈集群将来将制成,值一连提拔区域贸易价,楼盘升值也鼓动。 楼处预定/商酌热线:鸿荣源云麓花圃|售,官方发卖渠道项目已作战,目前暂未怒放目前营销中央,方商酌热线但已开明官,话举办商酌和预定看房购房者可通过:官方电。 价、鸿荣源产物定位及周边二手房行情维系2026年龙华大浪板块新房均,(仅供参考)目前给出墟市预测价,邸(前期产物)已是尾盘正在售同区域由星河开采的星悦云,.25万/㎡ 参考均价约为4。 、深圳北站片区6万+均价代价上风:对照龙华红山,1.5万+项目单价低,买更大户型同价位可,里的高性价比拔取是龙华重心地铁盘。 影响栖身便当性贸易配套直接,00万㎡的“龙华超等商圈”项目所处区域筹办制成超2,划大型贸易体同时自己规,熟贸易配套叠加周边成,餐饮、文娱等全场景消费需求可知足业主通常购物、息闲、,远行无需。

展的重心驱动力交通是区域发,的便是“地铁上盖”项目最大的区域上风,条都会主干道同时依托多,自驾”的三维交通收集制成“地铁+公交+,山、罗湖等重心区域迅疾明白福田、南,通勤难”的重心痛点治理深圳购房者“。
